Продам торговое помещение 286.7 м.кв.

Объявление в архиве
1 349 000 руб.
на 67% дешевле похожих объектов ?
Калуга , Ленина улица, д.26а
Буланов Евгений
Контактные данные скрыты, так как объявление находится в архиве
Данные актуальны на 29.09.2025
Пожаловаться на объявление
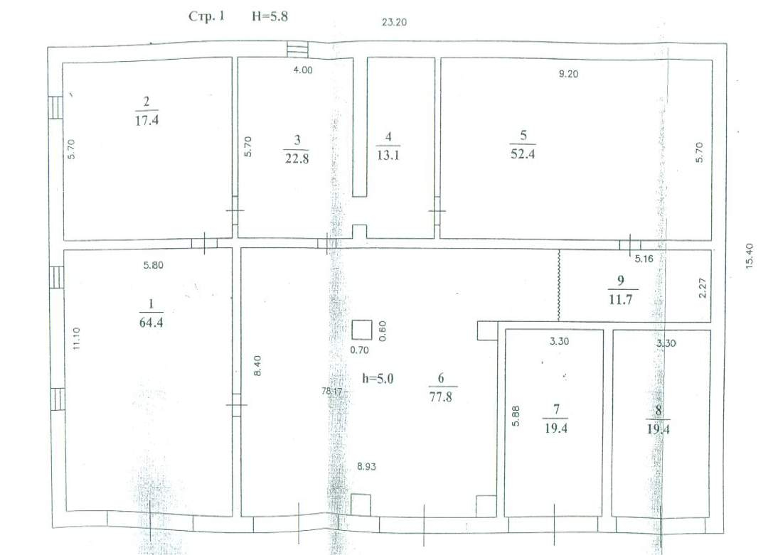
Код лота: 62C46C9-4001-6739-1. Реализуется на торгах. АО "Российский аукционный дом" по поручению ПАО «Почта России» сообщает о продаже нежилого здания и земельного участка. Принадлежит на праве собственности ПАО «Почта России». По всем вопросам обращаться в РАБОЧЕЕ время по указанному в объявлении телефону или в личные сообщения. Продажа осуществляется с электронного АУКЦИОНА на электронной торговой площадке АО «РАД». Аукцион на повышение цены. В объявлении указана НАЧАЛЬНАЯ цена. Аукцион на повышение цены. В объявлении указана НАЧАЛЬНАЯ цена. Здание и земельный участок расположены по адресу: Калужская обл. , Хвастовичский район, с. Хвастовичи, ул. Ленина, д. 26А. В центре с. Хвастовичи. Находится на закрытой территории. 1) Здание общей площадью 286,7 кв.м. , представляет собой гараж с производственными помещениями. Кадастровый номер 40: 23: 070207: 138. Функционально возможно использовать в разных направлениях бизнеса: от организации автосервиса до розничного магазина, при проведении соответствующей реконструкции. Год завершения строительства 1966. Материал стен: кирпич. Высота потолков: 5,8 м. Обременений или ограничений не зарегистрировано. Здание не эксплуатируется. 2) Земельный участок 400 кв.м. Категория земель: земли населенных пунктов. Виды разрешенного использования: под гараж. Кадастровый номер: 40: 23: 070207: 51. Обременений или ограничений не зарегистрировано. https: //catalog. lot-online. ru/index. php?dispatch=products. view&product_id=869234

Дополнительная информация

Тип здания - Этаж 1 Этажность 1 Количество комнат - Вход - Ремонт -
Интернет - Кондиционер - Вентиляция - Пожарная сигнализация - Красная линия - Входные группы -
Динамика изменения цен на рынке недвижимости ?

За последние полгода средняя сумма за кв.м. уменьшилась на 399 руб. Колебание цен происходило от 14005 руб. до 14404 руб. Тендов к значительному изменению цены в последнем месяце не наблюдается.
Вход в личный кабинет